이미지로 설명드렸으니 도면을 봅니다.
평면으로만 건물이 머리속에 안그려질테니 입단면을 같이 보면서 내머리속에 3D 구현을 합니다.
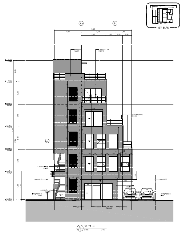
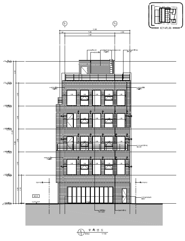
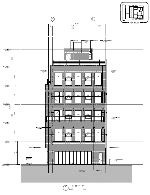
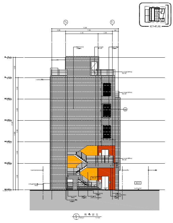
1. 입 면 도
실제로 공사를 위한 도면입니다.



- 순서대로 정면도, 우측면도, 좌측면도 입니다.
이미지가 작아서 복잡하네요, 치수도 있고 재료명도 있어서 이미지를 작게 하였습니다.
- 이 건물의 가장 큰 특징 2가지
첫째, 2층까지 오픈 계단 - 완공이후 가보면 느낌이 좋을겁니다.
둘째, 오픈 계단부분 컬러 입니다.
아마 시공사에서 얼마나 색상 구현을 잘 할수 있을지 걱정입니다. 색상 구현때는 무조건 현장에 가봐야 할 것 같습니다.
위 두가지가 이건물의 가장 큰 특징입니다.
사실 저도 궁금합니다. 어떻해 나올지..
- 계단실에 아롱쌓기로 되어 있습니다. 공간도 좁고 어두울꺼 같은 느낌을 조금은 상쇄시키는 역할을 해야할텐데, 구현이 쉽지 않습니다.
계단실에 설치되다 보니 구조적인 문제도 있고, 여러가지 어려운 점이 있었습니다.
결국 콘크리트 외벽이 설치하는 것인데, 아마 생각하는 그런 느낌은 아닐꺼 같습니다.
앞에서 입면에 관해 많은 이야기를 해서 도면을 보면서는 별로 이야기 할게 없네요.
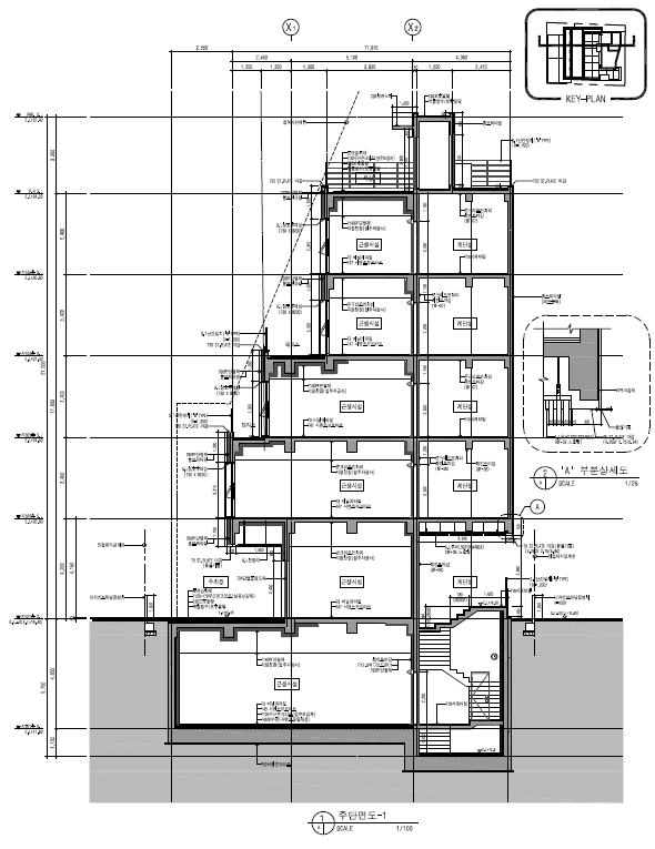
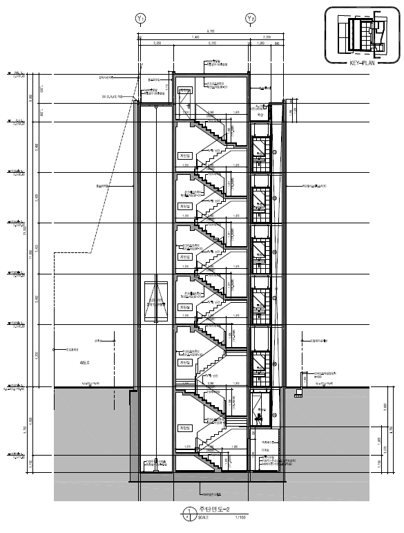
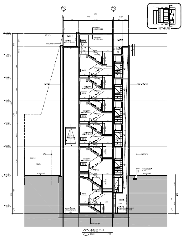
2. 단 면 도
테라스가 가장 잘 보이는 도면입니다.
공간의 높이가 나오고 재료명이 표현되고 평면, 입면에서는 볼수 없는 부분이 많이 보입니다.
단면은 매우 썩 그럴싸하게 보일경우가 많습니다.
그림이 뭔가 있어보이는 착각을 일으킵니다.


층별로 테라스가 표현이 되고, 1층 주차장도 표현됩니다.
도면에서는 스틸난간이지만 유리난간으로 변경 될겁니다.
오른쪽 도면은 계단 단면도 입니다.
평면 계획에서 말 했듯이 저 계단이 아주 XX 같았으며, 한동안 멘붕에 빠지게 했습니다.
삐딱하게 계획되어서 그리기도 힘들고 고가 높아서 계단 단수 만들어 내는 것도 힘들었습니다.
사실 지하층 층고가 좀 많이 높게 계획 되어 있습니다.
완공 이후 용도가 정해저 있었던 걸로 알고 있습니다.
그래서 그런지 층고가 많이 높습니다.
지하층 화장실은 반개층 위에 구성되었습니다. 바로 아래는 기계실이 배치되었습니다.
엘리베이터가 보이고, 평면, 입면, 단면을 머리속으로 조합해서 3D 구현합니다.
지하층은 방수에 많은 신경을 써야합니다. 그리고 환기도 신경써야 하지요.
그리고 화재도 신경써야합니다.
지하층 거실은 신경써야 할 부분이 많습니다.
3. 현장 방문
2004 / 02 / 05 : 현장 방문

▶ 지하1층
- 층고가 생각보다 많이 높게 느껴집니다.
- 계획당시 어떤한 이유때문에 층고가 높게 계획되었는데 실제로 보니 엄청 높네요
- 오늘 와서 보니 많이 아쉽습니다.
외부 직통계단이 연결되어 있었으면 느낌도 좋고 더 좋은 공간이 가능 했을텐데요.
많이 아쉬운 공간이네요

▶ 지하1층 비상계단
- 사진이 많이 흐리게 찍혔네요
- 설계당시에는 폭이 너무 안나와서 좁게 느껴지던게 막상 보니 생각보다는 좁지 않았습니다. 계단 단폭도 급하지 않았고요.
걱정많이 되던 부분인데 다행이네요
- 나중에 사진을 다시 찍어야 겠네요. 안보이네요

▶ 지상1층
- 지상 1층도 층고가 생각보다 많이 높게 느껴집니다.
- 주거지역에 건축되는 건물들은 1층 층고에 따라서 전체 건물에 면적관련 영향을 받습니다.
그래서 1층 층고높이가 조금 아쉽습니다.
추후에 완공 이후에 봐야 할 것 같습니다.

▶ 지상1층 진입 계단
- 1층 진입 계단입니다.
- 아직 한창 공사중이어서 사진이 좀 안좋네요. 완공이 되야 제대로 계단 형태가 보이겠지만, 지금은 느낌만 살짝 있습니다.
- 계단은 위쪽으로 한창 공사중이어서 제대로 못찍었는데 계단에서도 외부 포인트 부분이 있습니다.
어느 정도 정리가 되면 기대되는 부분입니다.
아직 한창 공사중이어서 제대로 볼수가 없습니다.
3층 공사중이어서 올라가서 봤는데 공간이 너무 좁더군요. 거기다가 일하시는 분들이 많으니 좁은데서 시공하신다고 힘들어보였습니다.
설계하면서도 좁다는 생각은 많이 했는데 역시나 좁더라고요
4월말 5월초 준공인데 걱정 반 기대 반이네요.
처음부터 관여했으면 좋았을것이나, 그렇지 못해서 생각하지도 못했던 부분이 많이 나오네요.
'건축' 카테고리의 다른 글
| "2024부동산 시장의 현황과 건설업 경기전망" (0) | 2024.02.09 |
|---|---|
| "도시 속 나만의 천국: 내 아파트 이야기" (0) | 2024.02.06 |
| 상가 건축의 핵심: 근린생활시설 신축을 위한 전문 지침서 - 실전편(4)- 입면 계획 (2) | 2024.02.04 |
| 상가 건축의 핵심: 근린생활시설 신축을 위한 전문 지침서 - 실전편(3)- 평면계획2 (1) | 2024.02.04 |
| 상가 건축의 핵심: 근린생활시설 신축을 위한 전문 지침서 - 실전편(2) (0) | 2024.02.02 |