평면의 기준이라고 할수 있는 1층이 결정되면 그다음 부터는 조금 편해진다.
상가건축의 가장 핵심은 코어만 잘 잡으면 그다음부터는 쭉~~우~~욱 진행 가능하다.
이전 글에서 코어의 위치가 확정되었으므로 다른층에 관해 이야기 할겁니다.
- 건축설계를 평면으로 그리다보니 가끔 아래위가 맞지 않는 경우도 많이 생긴다.
그래서 건축설계는 2D로 그리지만 3D로 생각을 하고 있어야 한다.
건축물은 2D가 아니기 때문이다
1. 평면 다듬기
- 대략적인 코어(엘리베이터, 계단실등)의 위치가 확정되면 지하층과 지상층의 대략적인 그림을 그리기 시작한다.

- 1차로 엘리베이터와, 계단실 위치가 결정되었습니다.
이제는 지하층, 지상층을 계획해야 합니다.
상가건물이 코어(공용)와 쓸수 있는 공간(전용)공간으로 분리 되므로 지하층과 지상층도 크게 다르지 않습니다.
단지 주거지역이므로 법적인 사항으로 인하여 평면 전용공간 달라질수는 있습니다.
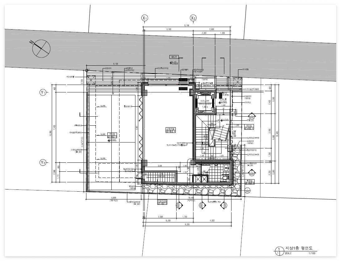
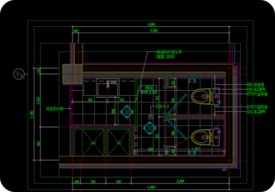
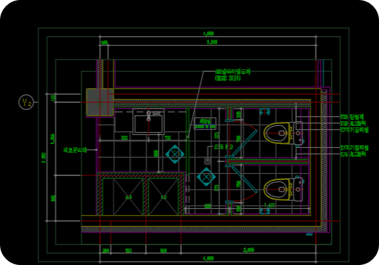
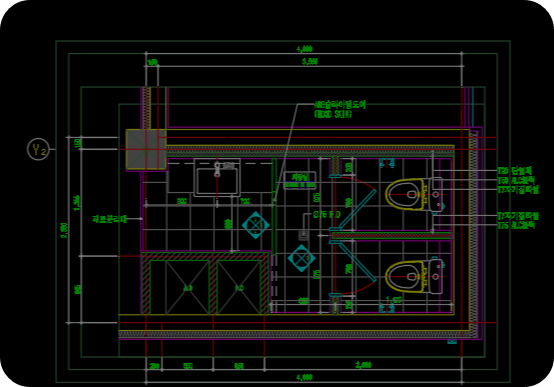
2. 지상1층 평면도
◆ 간단하게 몇가지만 설명하고 넘어가겠습니다.
1) 코어 전면 배치
2) 계단 형태 유지
3) 진입로 외부 노출
- 1층 진입로는 입면이나 단면도를 보게 되면 더 자세히 알수 있습니다.
4) 비상통로
5) 주차장
6) 휠체어사용자가 사용가능한 화장실
- 공사중 일반형으로 변경됨
1층은 이렇해 6가지 공간으로 구성되어 있습니다.

- 코어확정 이후 최종 도면입니다. 이것 저것 표현이 많이 되서 복잡해 보이지만 그림만 보면 똑같습니다.
- 이건물의 가장 큰 특징이라고 할수 있는 진입로 외부 노출입니다.
특별하지는 않으나 흔하게 볼수 있는 형태는 아니라고 생각합니다.

[ 진입로 계획 이미지 ]
- 외부에서 엘리베이터가 바로 접하는 형태입니다.
주로 내부로 들어가서 접근 가능한 건물에 비하면 특징있는
형태입니다.
- 장점과 단점을 동시에 가지고 있습니다.
- 내가 생각하는
장점 : 접근성이 좋다.
독특하여 시선을 끌수 있다.
시각적으로 답답하지 않다
단점 : 보완이 취약하다
- 각실별 보완장치는 다 존재하지만 접근 자체를 막을수 있는 형태는 아닙니다.
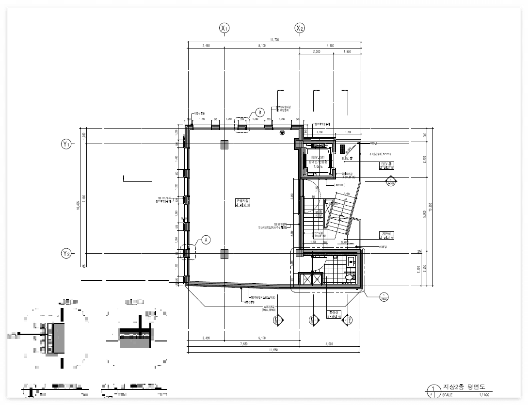
3. 지상2층 평면도
◆ 전용 공간과 코어가 전부 입니다.
- 휠체어 이동이 가능한 복도 폭과 외벽이 없어서 채광이 아주 좋습니다.
- 위 첨부 이미지 2층 계단실 이미지 참고하면 좋아요

이 상가 건물의 층수 중 가장 넓은 실내공간을 사용할 수 있습니다.
실제로 완공된 이후에 저 공간이 어느정도 느낌을 줄수 있을지 저도 궁금합니다.
사실 실내 공간 인테리어만 잘해도 전혀 다른 공간으로 보이기 때문에 추후 사용자에 따라
색다른 공간으로 보일수 있습니다.
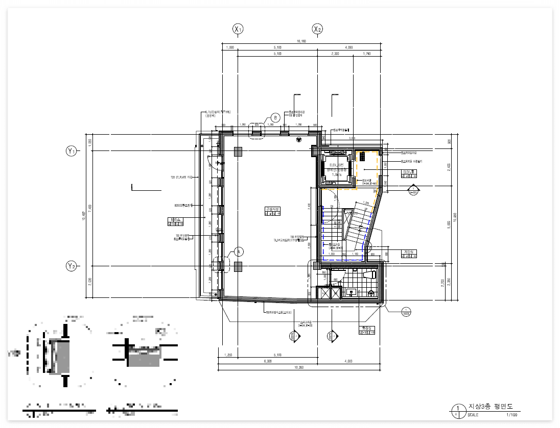
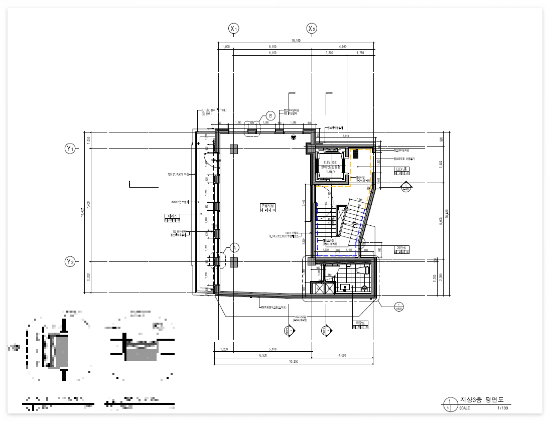
4. 지상3층 평면도
◆ 좁지만 긴 테라스가 만들어졌습니다.
테라스는 그 크기가 크던 작던 있는걸 개인적으로 좋아 합니다.
사실 테라스형성은 의도된 것이라기 보다 법적인 규제를 적용하다 보니 자연스럽게 생기는 현상입니다.
사실 작은 규모의 상가건물은 테라스보다는 전용공간이 큰것이 더 좋아합니다.
전용공간이 곧 임대가격의 영향을 받기 때문입니다.
테라스는 임대 서명할때 좋은 +알파 요소입니다.

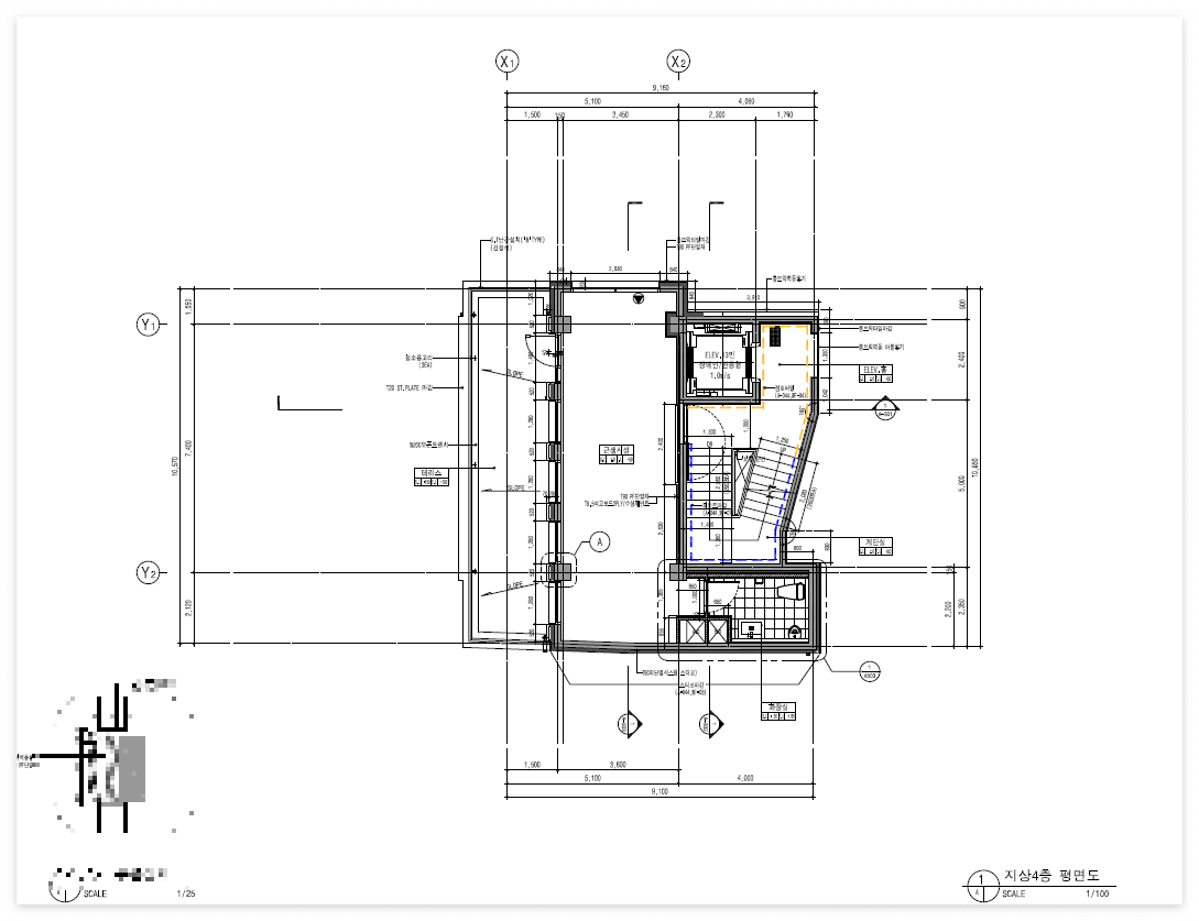
5. 지상4층 평면도
◆ 3층보다는 조금더 큰 테라스를 가지게 되지만 전용공간을 많이 줄어 들게 됩니다.
그래서 예전에는 저 테라스에 지붕을 덮어서 전용으로 많이 쓰던 곳인데 전부 불법입니다.
강남구는 단속도 심하고 주변에서 신고도 많이 들어간다고 합니다.

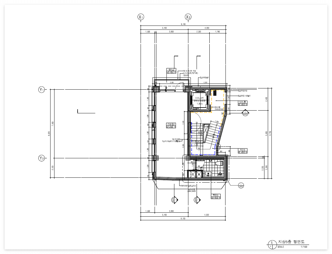
6. 지상5층 평면도
◆ 4층과 같은 전용공간을 가지고 있지만 왼쪽에 크고 좋은 테라스를 가지지 못했습니다.
전용공간도 작은데 테라스도 가지지 못해서 전면에 아주 작은 테라스를 만들었습니다.
작지만 테라스가 있고 없고의 차이는 저 공간을 쓰고 있는 이들에게는 많은 차이를 납니다.

전층 휠체어이용자가 사용가능 한 화장실이 있습니다.
처음 의뢰당시 요청에 의해서 장애인이 사용가능한 화장실(휠체어사용)이 구성되었습니다.
추후에 들었지만 요청이유는 있었습니다. 하지만 개인적으로는 이해 할 수 없었습니다.
왜냐구요, 작은 공간이라도 남여 구분의 유무는 사용자 입장에서는 편의성에서 엄청납니다.
음식점, 작은 유흥시설은 실내공간을 많이 쓸려고 남여공용으로 화장실은 쓰는 곳이 많으나 불편하죠!
잠깐 쓰는것이지만 그것도 불편한데 주거시설 밀집 공간에 있는 상가건축물이고, 위치상 음식점이나 유흥공간보다는 커피나 사무실용도로 나갈 확률이 많은 위치에서 보면 임차인 입장에서는 ( - )요인입니다.
저의 프로젝트가 이해는 되지않으나 이유가 있겠거니 하는 입장에 pass~~~~
저때는 저한테 올줄 몰랐죠..ㅎㅎ
그래서 결국 시공중 변경됩니다. 남여구분 화장실로.......이렇해 ( ↓ )

- 작지만 남여 구분했고,
- 세면기와 대변기 공간도 불리
: 슬라이딩 도어 설치 하므로써 사용자
입장을 고려함.
- 세면대와 대소변기가 같이 있는 경우가
90%이상이지만 굳이 그럴 필요는 없습니다.
- 남여 대변기 공간은 화장실에서 많이 쓰는
큐비클이 아니 alc 블럭을 쓰므로써 소음이나
프라이버시를 좀 더 확보 할려고 노력함.
- 실제 기존 하나의 화장실로 구성되어 있고 공간확보다 많이 부족했던 화장실이어서 저렇해 공간 분리를 하면서
상당히 까다롭게 구성되었습니다.
수치상으로도 많이 부족한 공간이 형성되었습니다.
시공할때 실제로 가서 공간을 느껴봐야 합니다.
사용가능한 최소수치는 있지만 , 그 수치들은 실제로 사용하기에는 많이 불편합니다.
이론상의 치수는 말그대로 이론수치이기 때문입니다.
다음 편은
상가 건축의 핵심: 근린생활시설 신축을 위한 전문 지침서 - 실전편(4)- 입면 계획
입니다.
'건축' 카테고리의 다른 글
| 상가 건축의 핵심: 근린생활시설 신축을 위한 전문 지침서 - 실전편(5) (0) | 2024.02.05 |
|---|---|
| 상가 건축의 핵심: 근린생활시설 신축을 위한 전문 지침서 - 실전편(4)- 입면 계획 (2) | 2024.02.04 |
| 상가 건축의 핵심: 근린생활시설 신축을 위한 전문 지침서 - 실전편(2) (0) | 2024.02.02 |
| 상가 건축의 핵심: 근린생활시설 신축을 위한 전문 지침서 - 실전편(1) (0) | 2024.02.02 |
| 상가 건축의 핵심: 근린생활시설 신축을 위한 전문 지침서 - 이론편(2) (0) | 2024.01.31 |